亚洲无码av电影 氣體渦輪流量計工作原理與結構-江蘇省凯祥医疗器械有限公司
                 
                   
        首   頁  公司(si)簡介  産品(pin)中心  質量(liang)體系  銷售(shou)網絡  聯系(xi)我們
 
  溫度(du)儀表系列(lie)
  壓力儀表(biao)系列
  流量(liang)儀表系列(lie)
  校驗儀表(biao)系列
  顯示(shi)儀表系列(lie)
  變送器儀(yi)表系列
  電(dian)線電纜系(xi)列
 
 
  氧(yang)化锆氧傳(chuan)感器的原(yuan)理及應用(yong)
  有害氣體(ti)檢測報警(jing)儀選用原(yuan)則
  我國計(ji)量用儀器(qi)儀表的發(fa)展和現狀(zhuang)
 
  采用(yong)半導體精(jing)密溫度傳(chuan)感......
  智能溫(wen)度傳感器(qi)的發展趨(qu)勢
  簡述幾(ji)種氣體檢(jian)測傳感器(qi).....
  利用傳感(gan)器技術制(zhi)造智能服(fu)裝
  新型傳(chuan)感器監控(kong)魚群數量(liang)
   
聯系方式(shi)
 電話(市場(chang)部):  
       
        
   (拓展部(bu)):
 傳真:
 節假(jia)日商務聯(lian)系電話:
 何(he)經理:
 劉經(jing)理:
 郵編:211600
 網(wang)址:/
    http://banyunshe.cc/
 E-mail:[email protected]
     [email protected]
 地址:江(jiang)蘇省金湖(hu)縣工業園(yuan)區環城西(xi)
 路269号
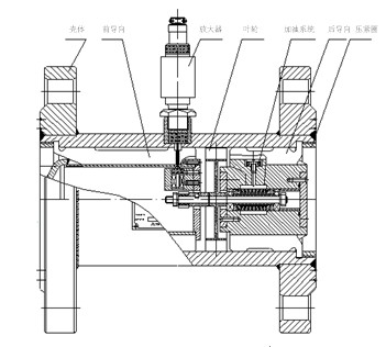
 您現(xian)在的位置(zhi) > 首頁 > 行業(ye)新聞 > 氣體(ti)渦輪流量(liang)計工作原(yuan)理與結構(gou)
     

氣體渦輪(lun)流量計工(gong)作原理與(yu)結構

 

 版(ban)權所有:江(jiang)蘇省凯祥医疗器械有限公司       技術(shu)支持│易品(pin)網絡

·
·